Buying Off-Plan Property in Portugal: Benefits, Risks & What to Know in 2026
- Aqua Vista

- Apr 13
- 3 min read
Buying off-plan property in Portugal has become increasingly popular among international buyers and investors looking to secure modern homes in high-demand locations.
With new developments often selling before completion, off-plan purchases offer the opportunity to enter the market early — often at more competitive prices — while benefiting from capital growth during the construction phase.
As construction begins on projects such as our São Martinho Apartments on Portugal’s Silver Coast, understanding the advantages and considerations of buying off-plan is more important than ever.

What Does Buying Off-Plan Property in Portugal Mean in 2026?
Buying off-plan property in Portugal means purchasing a home before construction is completed — and in some cases, before it has even begun.
Buyers typically secure a unit based on:
architectural plans
floor layouts
specifications
developer track record
This approach is widely used across Portugal, particularly in coastal areas where demand for new developments is strong.
Benefits of Buying Off-Plan Property in Portugal
Lower Entry Prices
Off-plan properties are often priced below the completed market value, allowing buyers to benefit from early-stage pricing.
Capital Growth During Construction
As construction progresses, values can increase — offering potential appreciation before completion.
Modern Design & Energy Efficiency
New developments meet the latest standards in:
energy efficiency
insulation
materials
contemporary layouts
Choice of Units & Layouts
Early buyers can select the best:
views
floor levels
orientations
layouts

Buying Off-Plan Property in Portugal as a Foreign Buyer
Buying off-plan property in Portugal is particularly attractive for international buyers who may not be based in the country full-time.
In many cases, the entire process can be managed remotely, including:
reserving a unit
reviewing floor plans and specifications
signing contracts
working with legal representatives
This makes off-plan property especially appealing for buyers in locations such as the UAE, the United States, and the United Kingdom, where travel schedules or distance may make frequent visits difficult.
With the right developer and legal support, purchasing property in Portugal can be a smooth and transparent process — even when completed from abroad.
Risks of Buying Off-Plan (And How to Mitigate Them)
While off-plan purchases offer clear advantages, it’s important to understand potential risks.
Construction Timelines
Delays can occur in any development. Working with experienced developers and clear timelines helps minimise this risk.
Market Conditions
Property values may fluctuate, although well-located coastal developments tend to remain resilient.
Developer Reputation
Choosing a developer with a clear vision, strong design approach and transparent communication is essential.
Why Off-Plan Property in Portugal Remains Popular in 2026
The Portuguese market continues to favour off-plan developments due to:
limited supply of new-build homes
increasing international demand
rising construction costs over time
For many buyers, securing property early in the development cycle provides both financial and lifestyle advantages.
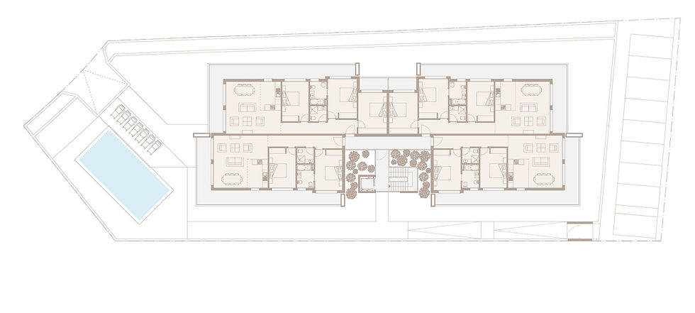
São Martinho Apartments — Now Under Construction
Construction has now begun on our São Martinho Apartments, a 24-unit coastal development located just moments from the bay in São Martinho do Porto.
Designed to maximise light, space and proximity to the ocean, the project offers:
modern open-plan living
private terraces
high-quality finishes
a prime coastal setting
Buyers can secure units early in the development cycle, with the process often managed remotely — making it ideal for international purchasers.
You can explore the full project, location and specifications here: São Martinho Apartments

Download Floor Plans & Availability
To help buyers fully understand the layout and design of the apartments, we have created a full set of architectural floor plans and unit configurations.
Register your interest below to receive:
detailed floor plans
unit availability
pricing information
project updates
Is Buying Off-Plan Right for You?
Buying off-plan property in Portugal is particularly suited to buyers who:
want a modern, energy-efficient home
are looking for long-term investment growth
want access to early-stage pricing
are comfortable with a construction timeline
Conclusion
Buying off-plan property in Portugal offers a compelling opportunity for both lifestyle buyers and investors, particularly in regions where demand continues to grow and supply remains limited.
With construction now underway, developments such as our São Martinho Apartments represent an early-stage opportunity to secure property in one of Portugal’s most attractive coastal locations.
If you would like to receive floor plans, pricing and availability for São Martinho Apartments, register your interest above and our team will be in touch.

